Enjoy special discounts on custom builds, ADUs, and home additions this season. Let’s make your vision a reality! your promotional text...




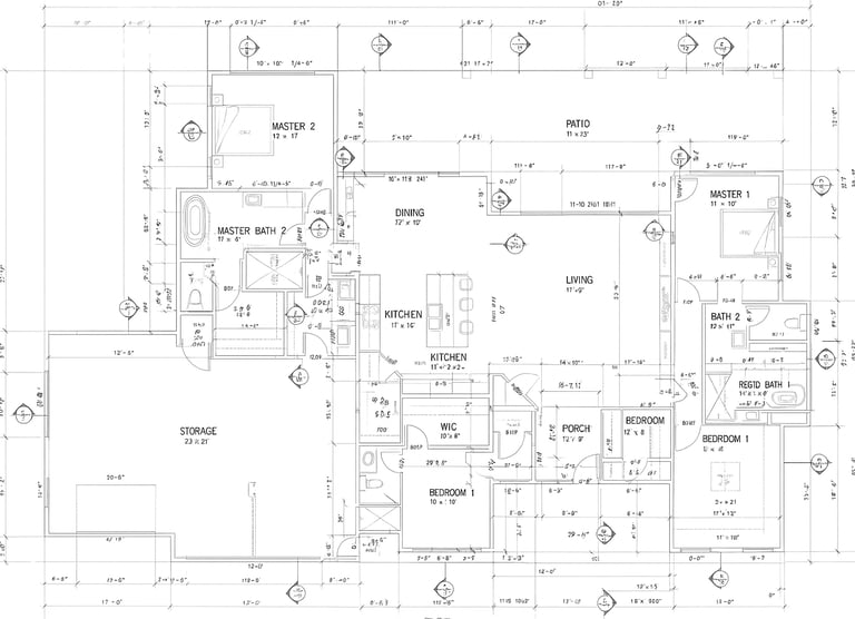
Modern Arizona Living – 2,339 S.F. Custom Home
A beautifully designed 3,921 S.F. under-roof residence featuring open living spaces, a 3-car garage, and generous outdoor areas built for Arizona’s lifestyle.
Construction costs typically range between $240–$280 per square foot, with a total estimated investment between $562,000 and $655,000, depending on finishes and design selections.




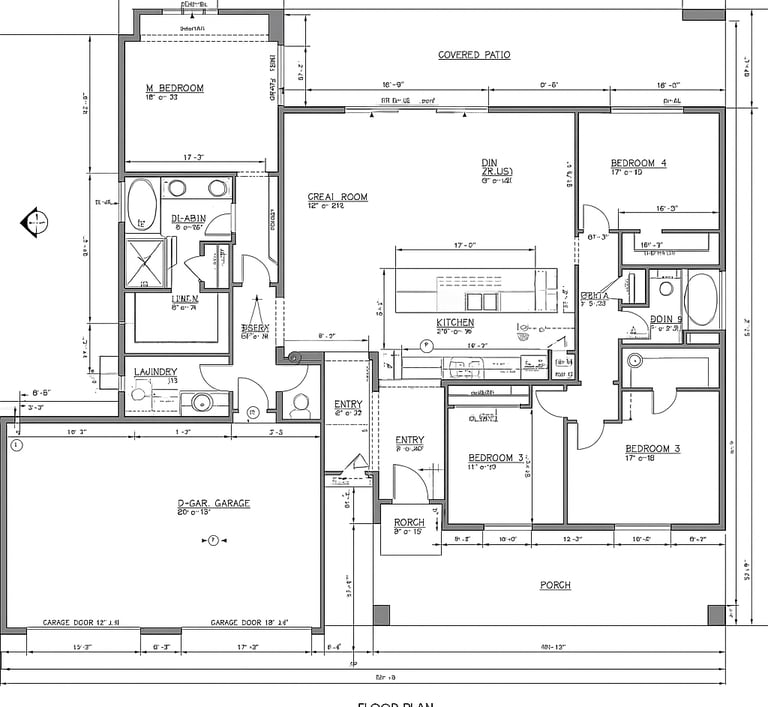
Spacious 2,768 S.F. Custom Home – Total 4,717 S.F. Under Roof
This elegant single-level residence offers 2,768 square feet of livable space, a 987 S.F. garage, 714 S.F. covered patio, and 248 S.F. covered porch, bringing the total under roof to 4,717 square feet. Designed for luxury, comfort, and functionality, this home showcases the craftsmanship and attention to detail that define Calderon Homes Construction.
Construction costs typically range between $210–$230 per square foot.




Modern 500 Sq. Ft. Pool House A stylish one-bedroom, one-bathroom pool house featuring a cozy living room and modern kitchenette — perfect for guests or a private retreat. Built with Calderon Homes’ quality craftsmanship, prices for a 500 sq. ft. build range from approximately $125,000 to $145,000, depending on chosen finishes.




Contact
Get in touch today
Connect
calderonhomes.co@gmail.com
(602) 596-5880
© 2025. All rights reserved.
